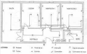
Piso en Barrio de Jeronimos

  • Instalación completa de cableado eléctrico.
  • Colocación de tomas de corriente, interruptores y paneles eléctricos.
  • Instalación de iluminación interior y exterior.

Precio Total: $50000(Incluyendo materiales y mano de obra)

Tiempo Requerido: 2 semanas

 

Piso en Serrano

  • Instalación completa de cableado eléctrico.
  • Colocación de tomas de corriente, interruptores y paneles eléctricos.
  • Instalación de sistema de seguridad con cámaras de vigilancia.
  • Instalación de iluminación interior y exterior.

Precio Total: $75000 (Incluyendo materiales y mano de obra)

Tiempo Requerido: 4 semanas

 

Otros

Soto del real

Tres cantos

navalafuente